Descriere apartament
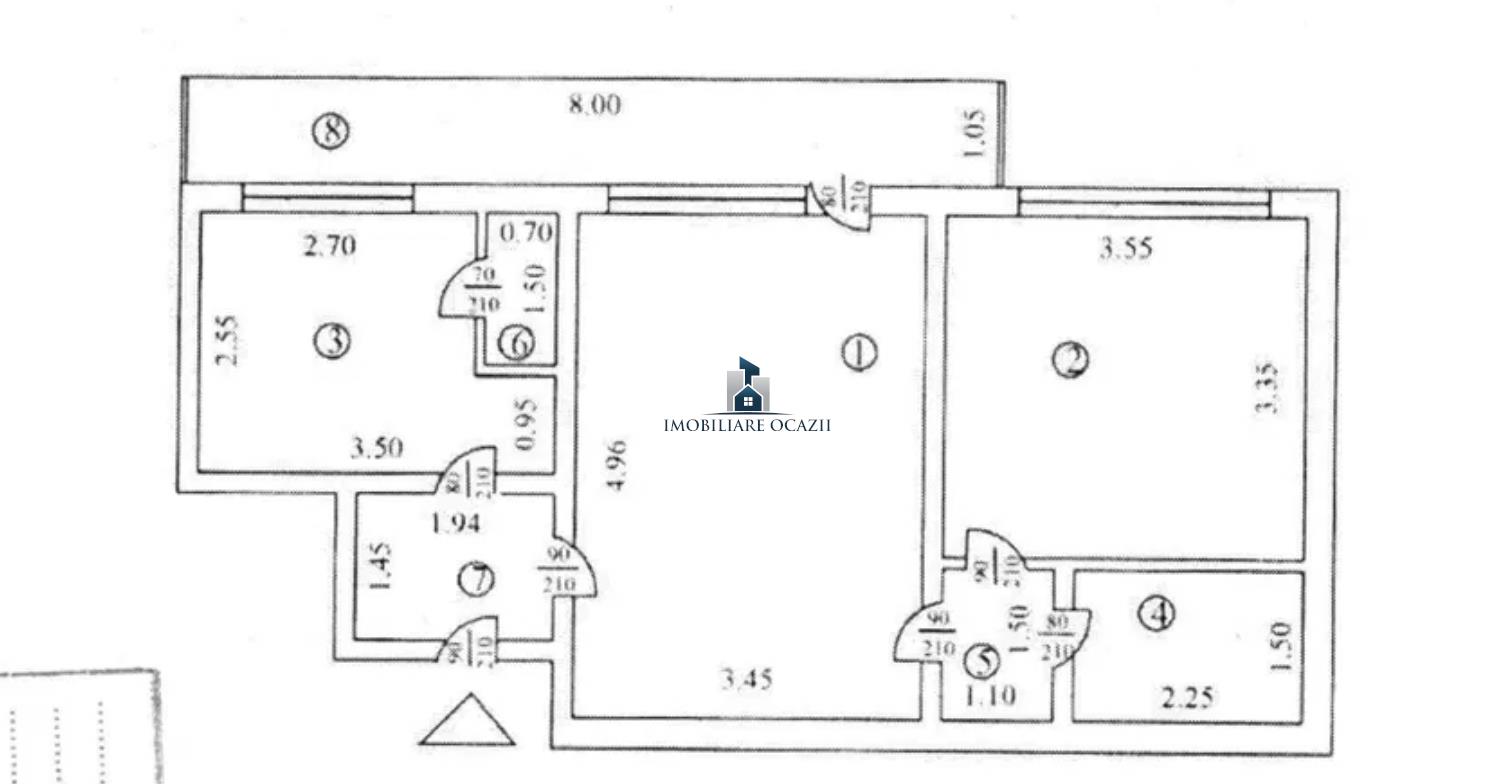
Apartament 2 camere Berceni-Secuilor, confort 1, semidecomandat, etaj 2 din 8, suprafata 54 mp, an constructie 1970. Are ferestre cu geam termopan, parchet, gresie, faianta, usa metalica, boiler, geam la baie. Detine loc de parcare platit. Apartamentul a fost renovat complet, inlusiv intalatiile electrice si sanitare, usi noi pe interior. Se accepta orice modalitate de plata.
Caracteristici:
Nr. camere: 2
Suprafata totala: 54 mp
Compartimentare: Semidecomandat
Confort: 1
Etaj: 2 din 8
Nr. bai: 1
Nr. balcoane: 1
An constructie: 1970
Nr. Locuri parcare: 1
Bloc reabilitat: Nu
Sistem incalzire: Termoficare
Usa intrare: Metal
Ferestre: PVC
Podele: Parchet, Gresie
Vedere: Fata
Pereti: Vopsea lavabila, Faianta
Geam Baie: Da
ID Oferta: 4576
Pret Vanzare: |
€ 90,000
|
Pret/mp: |
€ 1666.67
|
Zona: | Berceni |
---|
Suprafata utila: | 54 mp |
---|
Confort: | 1 |
---|
Compartimentare: | semidecomandat |
---|
Etaj: | 2/8 |
---|
Nr. etaje imobil: | 8 |
---|
Numar Bai: | 1 |
---|
Numar Balcoane: | 1 |
---|
Reper: | |
---|
Tip Imobil: | |
---|
Numar Camere: | 2 |
---|
An Constructie: | 1976 |
Actualizat la: |
16 Octombrie 2025 |
Numar de afisari: |
7 |
Caracteristici generale
- Ferestre: PVC
- Pereti: Faianta, Lavabil
- Usa intrare: Metal
- Incalzire: Termoficare
- Acces:
- Servicii: administrare