Descriere apartament
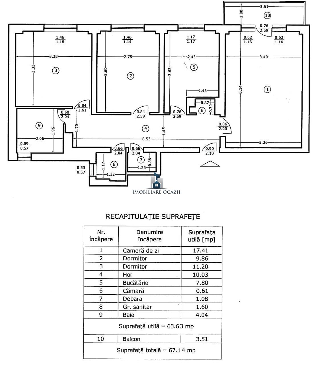
Apartament 3 camere Aparatorii Patriei-Tomesti, confort 1, decomandat, etaj P din 8, suprafata 68 mp, an constructie 1986. Are ferestre cu geam termopan, parchet, gresie, faianta, usa metalica, geam la baie. Mobilat si utilat partial.
Caracteristici:
Nr. camere: 3
Suprafata totala: 68 mp
Compartimentare: Decomandat
Confort: 1
Etaj: P din 8
Nr. bai: 2
Nr. balcoane: 1
An constructie: 1986
Nr. Locuri parcare: 0
Bloc reabilitat: Nu
Sistem incalzire: Termoficare
Usa intrare: Metal
Ferestre: PVC
Podele: Parchet, Gresie
Vedere: Fata
Pereti: Vopsea lavabila, Faianta
Geam Baie: Da
ID Oferta: 4587
| Pret Vanzare: |
€ 110,000
|
| Pret/mp: |
€ 1617.65
|
| Zona: | Berceni |
|---|
| Suprafata utila: | 68 mp |
|---|
| Confort: | 1 |
|---|
| Compartimentare: | decomandat |
|---|
| Etaj: | parter/8 |
|---|
| Nr. etaje imobil: | 8 |
|---|
| Numar Bai: | 2 |
|---|
| Numar Balcoane: | 1 |
|---|
| Reper: | |
|---|
| Tip Imobil: | |
|---|
| Numar Camere: | 3 |
|---|
| An Constructie: | 1986 |
| Actualizat la: |
17 Noiembrie 2025 |
| Numar de afisari: |
168 |
Caracteristici generale
- Izolatii termice: Fara
- Ferestre: PVC
- Pereti: Faianta, Lavabil
- Usa intrare: Metal
- Pardoseli: Gresie, Parchet
- Incalzire: Termoficare
- Mobilat: Partial
- Acces:
- Servicii: administrare