Descriere apartament
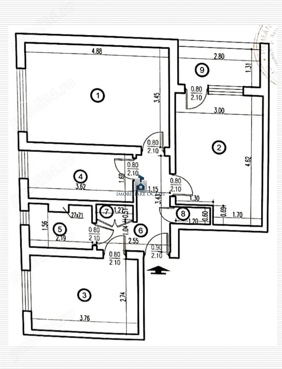
Apartament 3 camere Berceni-Aliorului, decomandat, etaj 5 din 10, suprafata 60 mp, an constructie 1972. Are ferestre cu geam termopan, parchet, gresie, faianta, usa metalica, geam la baie. Detine loc de parcare platit. Blocul este reabilitat. Se accepta orice modalitate de plata.
Caracteristici:
Nr. camere: 3
Suprafata totala: 60 mp
Compartimentare: Decomandat
Confort: 1
Etaj: 5 din 10
Nr. bai: 1
Nr. balcoane: 1
An constructie: 1972
Nr. Locuri parcare: 1
Bloc reabilitat: Da
Sistem incalzire: Termoficare
Usa intrare: Metal
Ferestre: PVC
Podele: Parchet, Gresie
Vedere: Fata
Pereti: Vopsea lavabila, Faianta
Geam Baie: Da
ID Oferta: 4804
| Pret Vanzare: |
€ 97,500
|
| Pret/mp: |
€ 1625.00
|
| Zona: | Berceni |
|---|
| Suprafata utila: | 60 mp |
|---|
| Confort: | 1 |
|---|
| Compartimentare: | decomandat |
|---|
| Etaj: | 5/10 |
|---|
| Nr. etaje imobil: | 10 |
|---|
| Numar Bai: | 1 |
|---|
| Numar Balcoane: | 1 |
|---|
| Reper: | |
|---|
| Tip Imobil: | |
|---|
| Numar Camere: | 3 |
|---|
| An Constructie: | 1972 |
| Actualizat la: |
4 Februarie 2026 |
| Numar de afisari: |
7 |
Caracteristici generale
- Izolatii termice: Exterior
- Ferestre: PVC
- Pereti: Faianta, Lavabil
- Usa intrare: Metal
- Pardoseli: Gresie, Parchet
- Incalzire: Termoficare
- Mobilat: Complet
- Locuri Parcare: 1/
- Acces:
- Interfon: da
- Lift: da
- Servicii: administrare