Descriere apartament
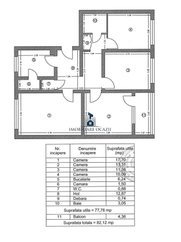
Apartament 4 camere Berceni - Spinis, confort 1, decomandat, etaj 3 din 4, suprafata 84 mp, an constructie 1974. Are ferestre cu geam termopan, parchet, gresie, faianta, usa metalica. Apartamentul necesita renovare. Se accepta orice varianta de plata.
Caracteristici:
Nr. camere: 4
Suprafata totala: 84 mp
Compartimentare: Decomandat
Confort: 1
Etaj: 3 din 4
Nr. bai: 2
Nr. balcoane: 1
An constructie: 1974
Nr. Locuri parcare: 0
Bloc reabilitat: Nu
Sistem incalzire: Termoficare
Usa intrare: Metal
Ferestre: PVC
Podele: Parchet, Gresie
Vedere: Mixta
Pereti: Vopsea lavabila, Faianta
Geam Baie: Nu
ID Oferta: 4816
| Pret Vanzare: |
€ 115,000
|
| Pret/mp: |
€ 1369.05
|
| Zona: | Berceni |
|---|
| Suprafata utila: | 84 mp |
|---|
| Confort: | 1 |
|---|
| Compartimentare: | decomandat |
|---|
| Etaj: | 3/4 |
|---|
| Nr. etaje imobil: | 4 |
|---|
| Numar Bai: | 2 |
|---|
| Numar Balcoane: | 1 |
|---|
| Reper: | |
|---|
| Tip Imobil: | |
|---|
| Numar Camere: | 4 |
|---|
| An Constructie: | 1974 |
| Actualizat la: |
10 Februarie 2026 |
| Numar de afisari: |
3 |
Caracteristici generale
- Acces:
- Interfon: da
- Lift: nu
- Servicii: administrare