Descriere apartament
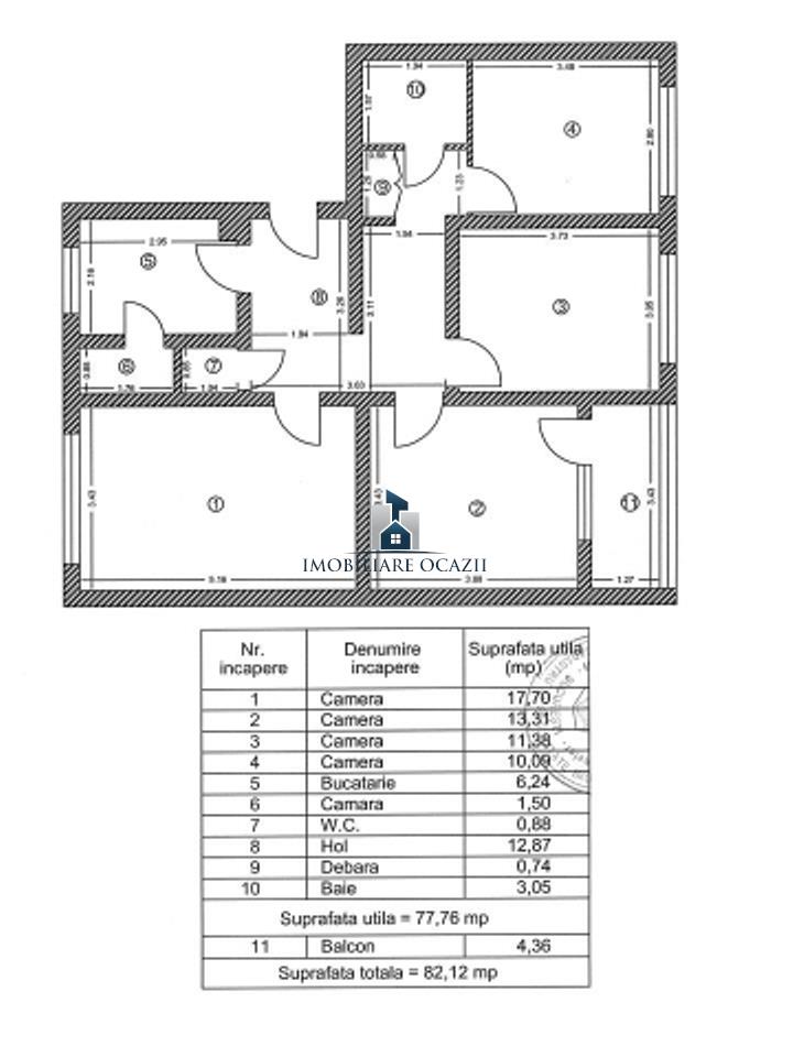
Apartament 4 camere Berceni-Izvorul Muresului, decomandat, etaj 3 din 4, suprafata 80 mp, an constructie 1975. Are ferestre cu geam termopan, parchet, gresie, faianta, usa metalica. Blocul este reabilitat. Se accepta orice modalitate de plata.
Caracteristici:
Nr. camere: 4
Suprafata totala: 80 mp
Compartimentare: Decomandat
Confort: 1
Etaj: 3 din 4
Nr. bai: 1
Nr. balcoane: 1
An constructie: 1975
Nr. Locuri parcare: 0
Bloc reabilitat: Da
Sistem incalzire: Termoficare
Usa intrare: Metal
Ferestre: PVC
Podele: Parchet, Gresie
Vedere: Mixta
Pereti: Vopsea lavabila, Faianta
Geam Baie: Nu
ID Oferta: 4917
| Pret Vanzare: |
€ 130,000
|
| Pret/mp: |
€ 1625.00
|
| Zona: | Berceni |
|---|
| Suprafata utila: | 80 mp |
|---|
| Confort: | 1 |
|---|
| Compartimentare: | decomandat |
|---|
| Etaj: | 3/4 |
|---|
| Nr. etaje imobil: | 4 |
|---|
| Numar Bai: | 2 |
|---|
| Numar Balcoane: | 1 |
|---|
| Reper: | |
|---|
| Tip Imobil: | |
|---|
| Numar Camere: | 4 |
|---|
| An Constructie: | 1975 |
| Actualizat la: |
2 Aprilie 2026 |
| Numar de afisari: |
25 |
Caracteristici generale
- Izolatii termice: Exterior
- Ferestre: PVC
- Pereti: Faianta, Lavabil
- Usa intrare: Metal
- Pardoseli: Gresie, Parchet
- Incalzire: Termoficare
- Mobilat: Nemobilat
- Acces:
- Servicii: administrare