Descriere apartament
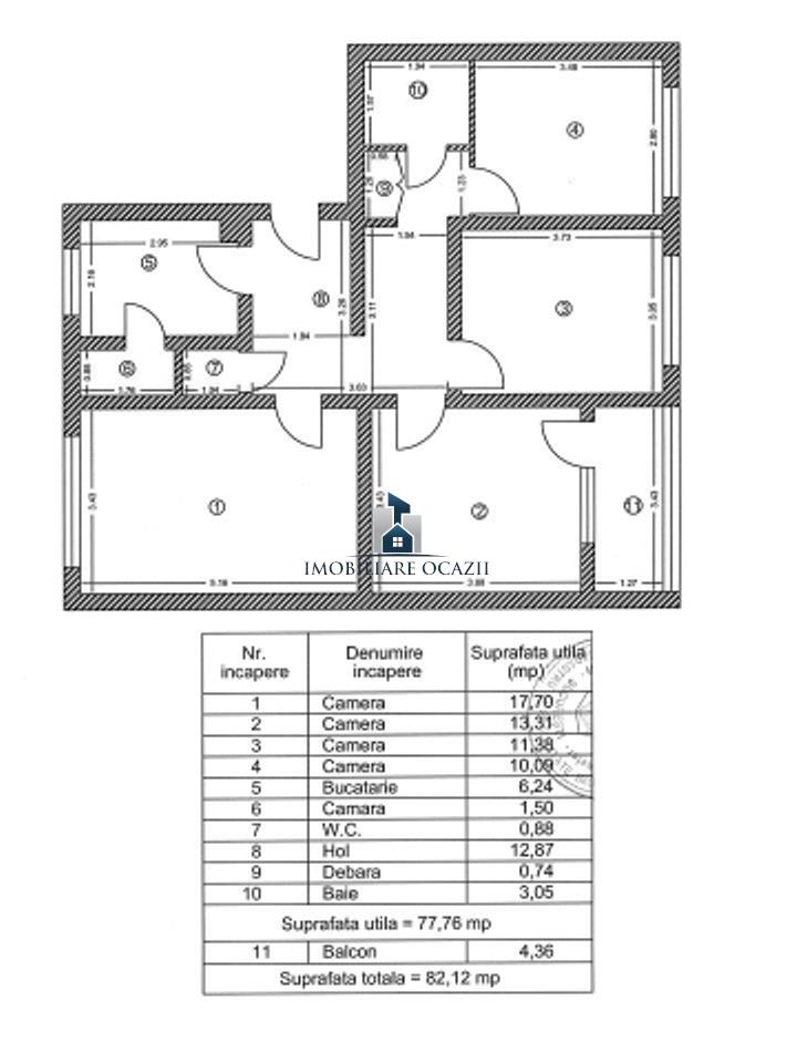
Apartament 4 camere Berceni-Izvorul Crisului, decomandat, etaj 1 din 4, suprafata 80 mp, an constructie 1975. Are ferestre cu geam termopan, usa metalica, centrala proprie. Blocul este reabilitat. Detine loc de parcare platit si boxa la subsol. Apartamentul necesita renovare completa. Se accepta orice modalitate de plata.
Caracteristici:
Nr. camere: 4
Suprafata totala: 80 mp
Compartimentare: Decomandat
Confort: 1
Etaj: 1 din 4
Nr. bai: 2
Nr. balcoane: 1
An constructie: 1975
Nr. Locuri parcare: 1
Bloc reabilitat: Da
Sistem incalzire: Centrala Proprie
Usa intrare: Metal
Ferestre: PVC
Podele: Parchet, Gresie
Vedere: Mixta
Pereti: Vopsea lavabila, Faianta
Geam Baie: Nu
ID Oferta: 4988
| Pret Vanzare: |
€ 128,500
|
| Pret/mp: |
€ 1606.25
|
| Zona: | Berceni |
|---|
| Suprafata utila: | 80 mp |
|---|
| Confort: | 1 |
|---|
| Compartimentare: | decomandat |
|---|
| Etaj: | 1/4 |
|---|
| Nr. etaje imobil: | 4 |
|---|
| Numar Bai: | 2 |
|---|
| Numar Balcoane: | 1 |
|---|
| Reper: | |
|---|
| Tip Imobil: | |
|---|
| Numar Camere: | 4 |
|---|
| An Constructie: | 1975 |
| Actualizat la: |
27 Aprilie 2026 |
| Numar de afisari: |
8 |
Caracteristici generale
- Izolatii termice: Exterior
- Incalzire: Centrala proprie
- Locuri Parcare: 1/inclus in pret
- Acces:
- Interfon: da
- Lift: nu
- Servicii: administrare